these two exteriors are created from exactly the same floor plan. Same room sizes, same window and door placement. I was challenged to take this more traditional floor plan/ exterior and give it an entirely new contemporary feel. thorpshire is an 18

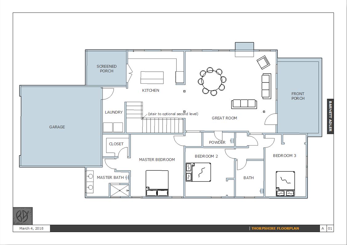
these two exteriors are created from exactly the same floor plan. Same room sizes, same window and door placement. I was challenged to take this more traditional floor plan/ exterior and give it an entirely new contemporary feel. thorpshire is an 1850 sq ft open 3 bedroom / 2 1/2 bath floor plan I designed. I believe this is a great example to show just how much variety can be created within a given design.

thorpshire render 2.JPG
thorpshire render 4.JPG
thorpshire render 5.JPG
thorpshire render 6.JPG
THORPSHIRE FLOOR PLAN.JPG
thorpshire front.JPG
thorpshire left.JPG
thorpshire right.JPG
modern front.JPG
modern left.JPG
modern right.JPG