IMG_8367.JPG
  single family home I designed on Cape Cod in Massachusetts. the house had to be built on a pre-determined rectangular footprint; my goal was to create a dwelling that took advantage of amazing views and did not feel like the simple rectangle on whi

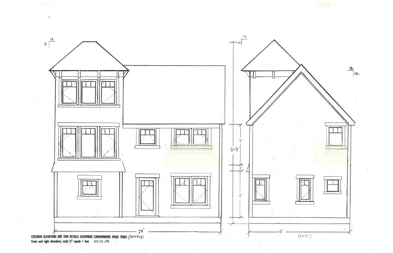
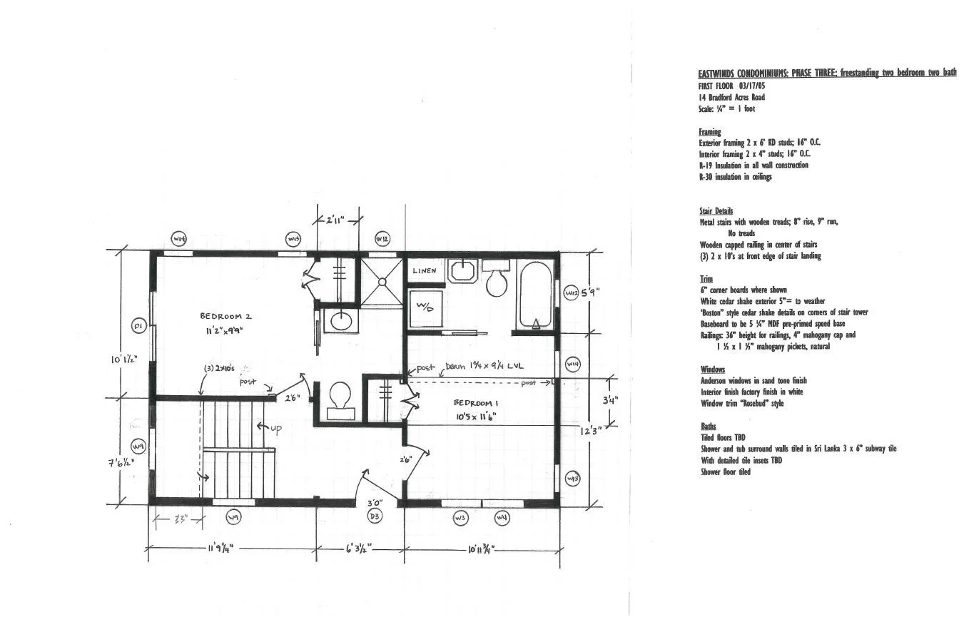
single family home I designed on Cape Cod in Massachusetts. the house had to be built on a pre-determined rectangular footprint; my goal was to create a dwelling that took advantage of amazing views and did not feel like the simple rectangle on which it was built. pictures, renderings, and plans of the home shown.

IMG_8364.JPG
fort_lauderdale_005.jpg
IMG_8365.JPG
IMG_8362.JPG
fort_lauderdale_006.jpg
fort_lauderdale_003.jpg
fort_lauderdale_010.jpg
image.jpeg
image[1].jpeg
image[2].jpeg
image[3].jpeg
4.1.JPG
4.2.JPG
4.3.JPG
4.4.JPG