Modular laminate and acrylic reception desk designed for Hanna Imports. The modular units are mirrored in design and can be grouped in various configurations to give them ultimate re-purposing capabilities, placement, and uses.

Modular laminate and acrylic reception desk designed for Hanna Imports. The modular units are mirrored in design and can be grouped in various configurations to give them ultimate re-purposing capabilities, placement, and uses.

 render

render

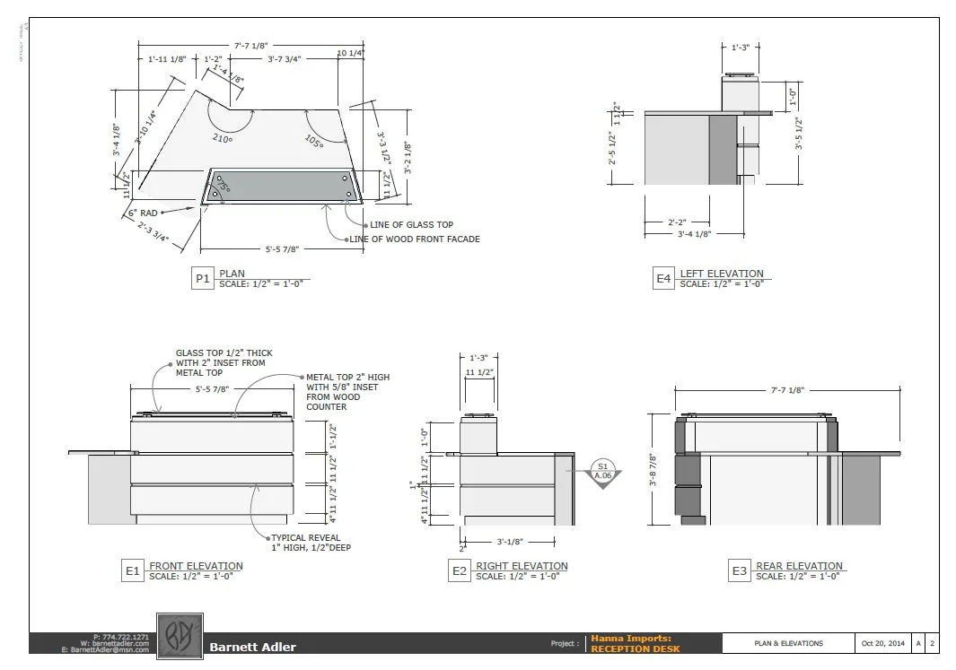
 mechanical drawing

mechanical drawing

reception desk 1.JPG
reception desk 2.JPG
reception desk 3.JPG
reception desk 4.JPG